



La cortina a faccia vista risultava degradata in più zone con pericolo di caduta di materiale dall'alto


In alcuni punti della facciata era evidente il ribaltamento del paramento in cortina fuori dal piano. Specifici sondaggi e approfondimenti in corso d'opera hanno permesso di determinarne le cause e trovare adeguate soluzioni progettuali.

Un' accurata analisi storico critica, ricerche documentali e informazioni dai condomini hanno permesso di individuare gran parte dei precedenti interventi non visibili integrandoli nel progetto in modo da fornire soluzioni complementari ed unitarie.

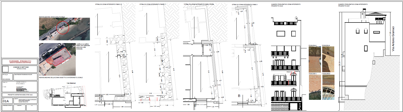
Numerose erano le lesioni sulle pareti dell'edificio: è stato fatto un'accurata visione d'insieme ed un alnaisi globale del quadro fessurativo. Questo ha permesso di individuare le diverse cause che le avevano generate, il consolidamento mirato e la conseguente eliminazione del problema.


Gli interventi eseguiti nel tempo di risanamento superficiale dei balconi avevano in prima analisi fatto escludere la necessità di un consolidamento pesante sugli stessi, "mascherando il reale stato degli elementi in acciaio portanti.

Dopo la visione ravvicinata e una spicconatura locale è emerso un quadro allarmante con un avanzato stato di degrado del materiale.







Individuazione prevedenti interventi con conseguente risanamento e/o sostituzione degli elementi ammalorati




Risanamenti con la tecnica del "scuci e cuci"





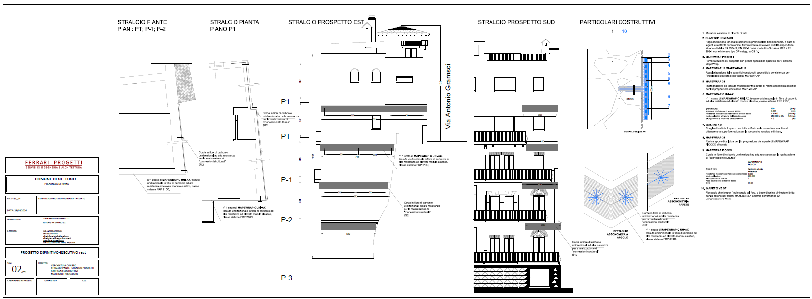
Sistema per evitare l'innesco di possibili cinematismi fuori dal piano. Preparazione del supporto con eliminazione delle parti incoerenti, stilatura dei giunti, realizzazione superficie piana con Planitop HDM, posa in opera delle fasce in tessuto di carbonio MapeWrap C uniassiale 600gr.



Consolidamento balconi




